В Пензе на Шуисте планируют построить ФОК
В управлении капитального строительства сообщили, что подрядная организация определена, завершить проектирование планируется до конца 2025 года.
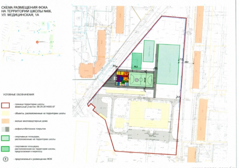
Предполагается, что модульное спортивное сооружение будет располагаться на территории школы №66. В ФОКе общей площадью не менее 1500 квадратных метров будут раздевалки с душевыми и санузлами, включая специализированные для маломобильных групп, медицинский кабинет, гардероб и административные помещения.
В 2026 году на реализацию проекта планируется выделение средств из бюджетов различных уровней.
Автор: Кирилл ЯРЦЕВ
Нашли ошибку - выделите текст с ошибкой и нажмите CTRL+ENTER
Ссылки по теме
Светлана Разина боялась ехать в Пензу после концерта Славы
Певица призналась в этом своим поклонникам
В Пензе прошел отборочный этап «Что? Где? Когда?» для студентов
Окружная олимпиада пройдет в Саранске
Татьяна Пузанова стала победителем конкурса «Учитель года – 2026» в Пензе
Она получила денежный приз в размере 100 000 рублейПензенцам рассказали, можно ли забирать школьников домой во время сирены
Пензенская школьница стала победителем премии Русского географического общества
Пензенский школьник вошел в число победителей международного конкурса по математике
Школу села Тимирязево Башмаковского района обновят по нацпроекту
На что чаще всего россияне тратят заемные средства: рейтинг целей
Проблема может возникнуть неожиданно, а накоплений может не быть
В Пензенской области пройдет фестиваль ГТО
Среди трудовых коллективов государственных и муниципальных служащих

